Таунхаус, Белинского Показать на карте
Ленинский район
Магнитогорск
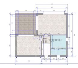
id:38886. Предлагаем вашему вниманию просторный и комфортабельный таунхаус общей площадью 150 кв. м., расположенный на участке от 2,5 соток в живописном районе с развитой инфраструктурой.Характеристики:- Фундамент: монолитная ж/б плита с ростверком по слою уплотненного щебня, обеспечивающая надежность и долговечность.- Пол: бетонная армированная плита (150 мм) для устойчивости и прочности.- Крыльцо: монолитное бетонное с удобными ступенями, облицованное тротуарной плиткой.- Отмостка: утепленная ППС (100 мм) для защиты от влаги и долговечности.- Стены: каменные, кладка из блоков СКБ (200 мм) с отделкой фасада декоративной штукатуркой по утеплителю ППС (150 мм), а также фрагментами сайдинга и облицовочного кирпича согласно проекту.- Кровля: рулонная (техноэласт ФИКС и ЭКП) с ветрозащитой, утеплением (200 мм) и разреженной обрешеткой по деревянным стропилам.- Водосточная система: наружная, металлический профиль с полимерным покрытием для защиты от коррозии.- Окна: ПВХ профиль с ламинацией с наружной стороны и двухкамерным энергосберегающим стеклопакетом для повышения энергоэффективности.- Входная дверь: металлическая утепленная для надежной защиты.- Потолки: разреженная обрешетка с пенофолом для дополнительной теплоизоляции.- Перегородки: из бетонного камня (390*190*190) с использованием сетки для кладки и арматуры для звукоизоляции.- Вентиляция: естественная с приточными вентканалами под окнами и утепленными вытяжными вентканалами на кровле.- Электроснабжение: подземное, кабель заведен в дом. Шкаф для установки узла учета установлен на границе участка.- Водоснабжение: подземное, ввод в помещение, узел учета установлен в колодце.- Канализация: подземная с отведением в поселковую сеть.- Газоснабжение: выполнена подводка газовой трубы в котельное помещение.Инфраструктура:Район с развитой инфраструктурой: в шаговой доступности находятся детские сады, школы, парки, скверы, магазины, аптеки и остановки общественного транспорта.Специальное предложение:При покупке этого дома сделаем скидку на услугу по продаже Вашей недвижимости в размере 40 000 рублей!
150 м2
2 этажа
- Показать контакты
- Добавить в избранное
150 м2
2 этажа
12 280 000
81 867 /м2
