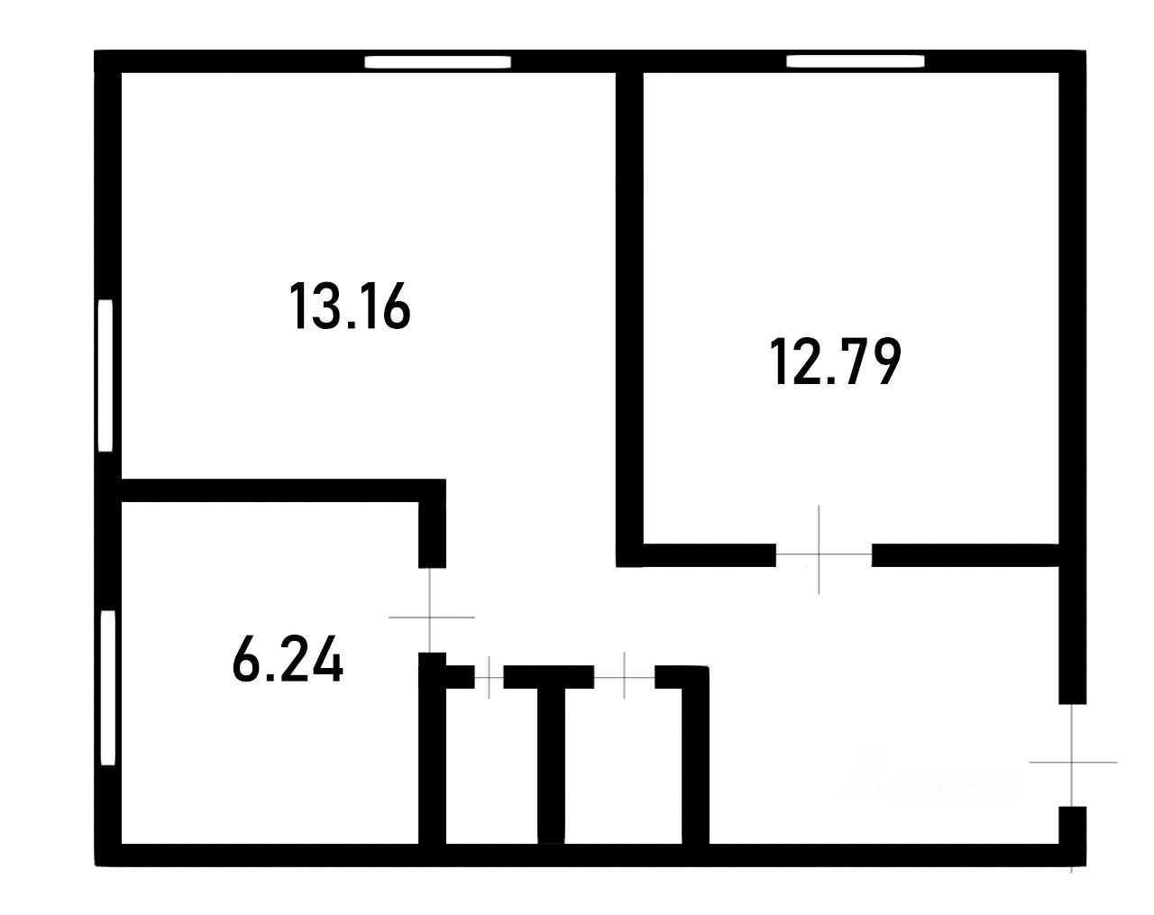
Отличный вариант двухкомнатной квартиры по привлекательной цене, в которую можно заехать и жить.
Расположена на первом этаже двухэтажного дома. Дом находится практически в центре посёлка.
Вся необходимая для жизни инфраструктура в шаговой доступности.
В квартире сделан свежий ремонт. Поменяна вся электрическая проводка,сантехническая разводка, установлены окна, межкомнатные двери, натяжные потолки, в санузле кафель на полу и на стенах. Установлен электрический водонагреватель. В квартире никто не зарегистрирован, без долгов и обременений, чистая продажа. Любая форма расчёта. Ипотечники приветствуются.
Уважаемые покупатели, если вы хотите узнать оперативную информацию по данному объекту, огромная просьба звонить на номер указанный в объявлении, а не писать в сообщения!!!














