сдам производственное помещение, Мира, 485 000 ₽ в месяц
25 окт
Дата публикации объявления
Обн. вчера
Дата обновления объявления
6
Количество просмотров (+ просмотры за сегодня)
205 ₽/м² в месяц
Параметры
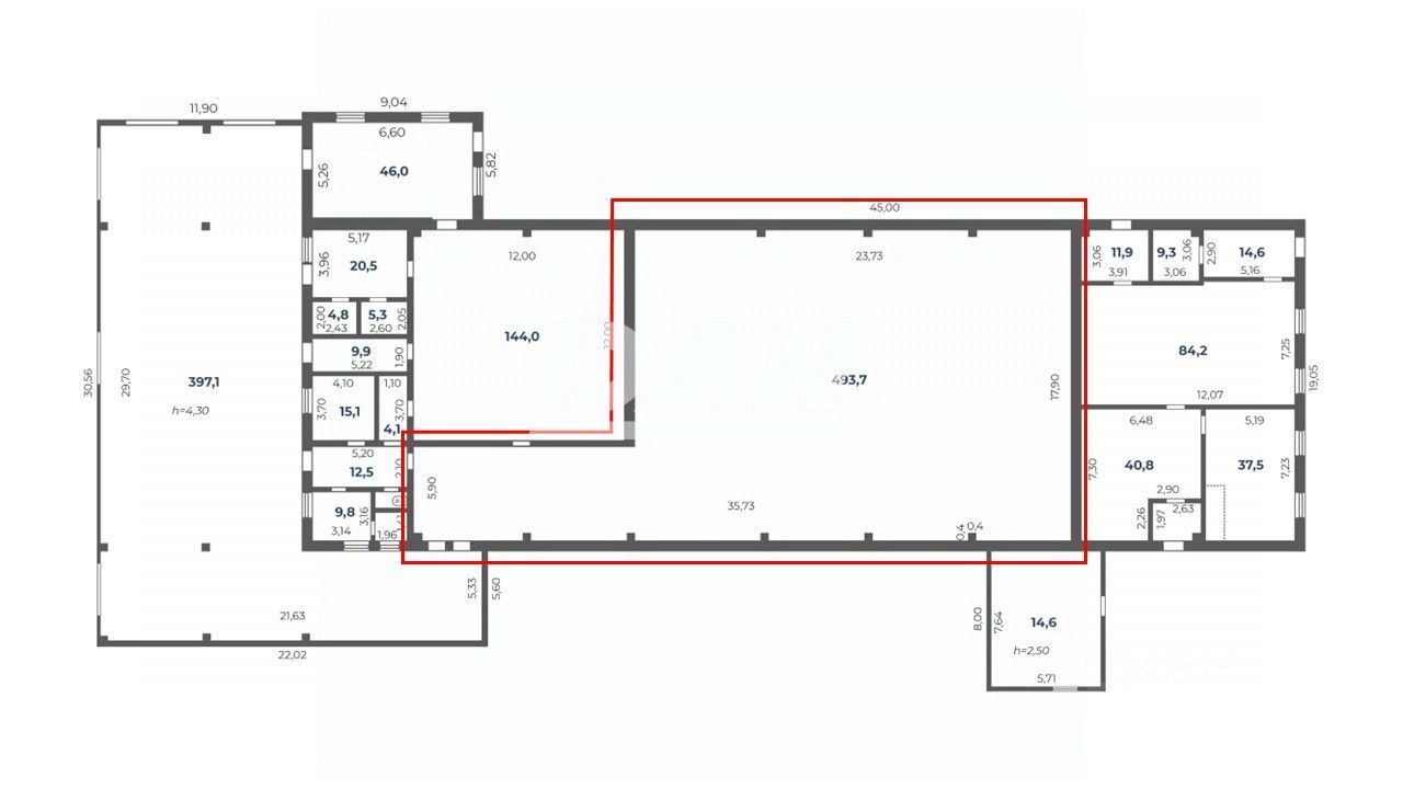
Общая площадь413 м2
Этаж1
Сдается в аренду производственно-складское помещение площадью 413 кв.м. подходящее для ведения любой коммерческой деятельности, обеспеченной центральными комуникациями.
Расположение: Чел. Обл., г. Копейск, ул. Мира, д.4. Строение: Цех квашения и засолки Общая площадь: 413 кв.м. Высота потолка: 4 Пол: бетон Кол-во входов: 1 шт. Коммуникации: Отопление газ Вода\Водоотведение Центральные Эл-во: 30 кВт (на все здание)
Предполагаемый вид использования: Склад Производство
Важно отметить, в радиусе 15-минутной автомобильной доступности плотность населения для набора персонала составляет 41 833 человек.
Сдается в аренду производственно-складское помещение площадью 413 кв.м. подходящее для ведения любой коммерческой деятельности, обеспеченной центральными комуникациями.
Расположение: Чел. Обл., г. Копейск, ул. Мира, д.4. Строение: Цех квашения и засолки Общая площадь: 413 кв.м. Высота потолка: 4 Пол: бетон Кол-во входов: 1 шт. Коммуникации: Отопление газ Вода\Водоотведение Центральные Эл-во: 30 кВт (на все здание)
Предполагаемый вид использования: Склад Производство
Важно отметить, в радиусе 15-минутной автомобильной доступности плотность населения для набора персонала составляет 41 833 человек.
Транспортная развязка в расположении объекта, обеспечивает всем выдам автомобильного транспорта, удобные подъездные пути во все районы города Копейск, а так же до крупных транспортных развязок по следующим направлениям: +8 км. до центра г. Копейск + 11 км. до объездной г. Челябинска (обход города) прямой въезд/выезд в сторону г.Курган, г.Екатеринбург, г.Троицк, г.Уфа, Республики Казахстан, + 14 км. до г. Челябинска