В избранном
В избранное
Пожаловаться
Напечатать
Следить за ценой

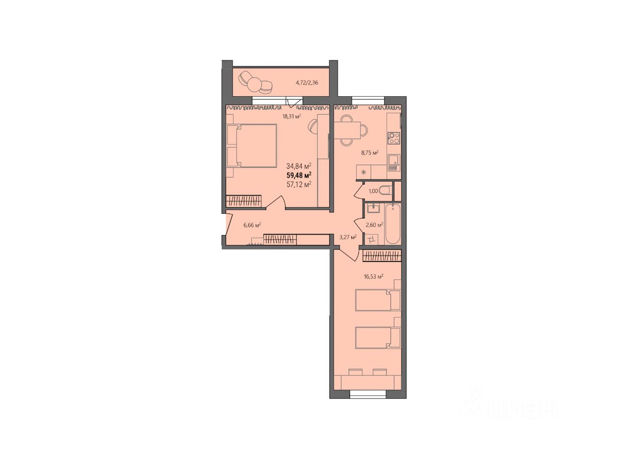
продам 2-к, Береговая (мкр Белый хутор), 47 039 500 ₽

3 окт
Обн. вчера
3
114 092 ₽/м²
  • Чистая продажа