сдам производственное помещение, Мира, 41 200 000 ₽ в месяц
25 фев 2025
Дата публикации объявления
Обн. 15 апр
Дата обновления объявления
14
Количество просмотров (+ просмотры за сегодня)
955 ₽/м² в месяц
Параметры
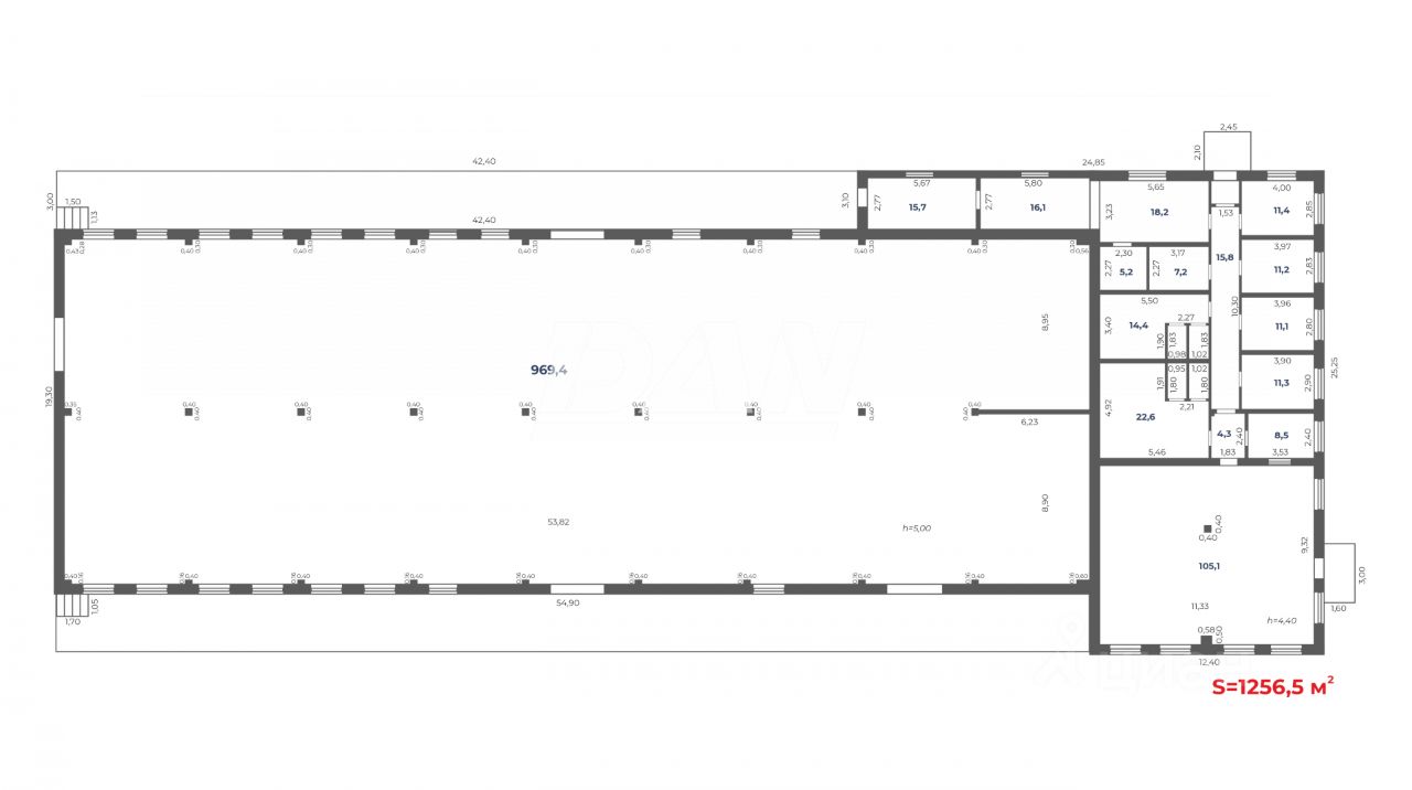
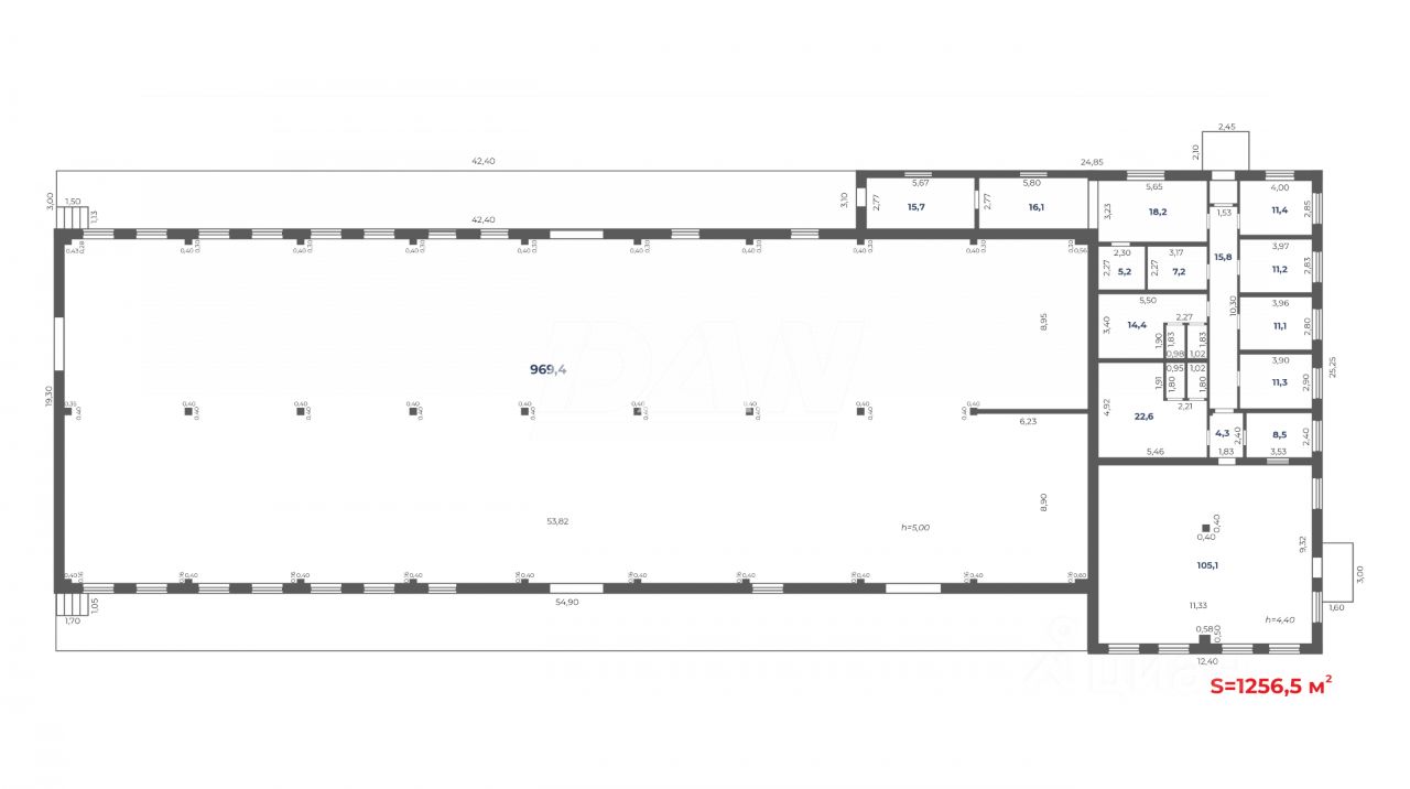
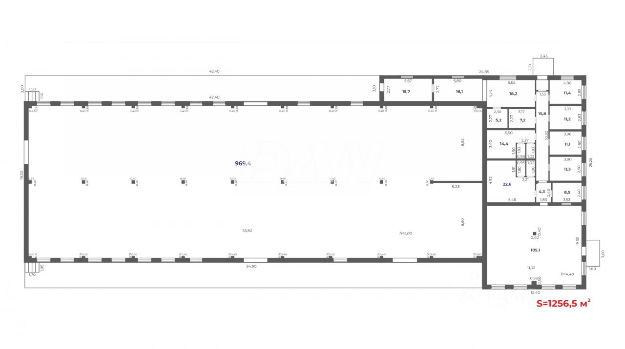
Общая площадь1256 м2
Этаж1
Сдается в долгосрочную аренду действующее предприятие ''Литейное производство'' укомплектованное необходимым штатом сотрудников, полным комплектом оборудование по литейному производству отливок из стали, чугуна, нержавеющих и жаропрочных сталей, а так же по производству нестандартного оборудования. Объект подходит как для расширения уже действующего предприятия с растущим объемом продаж готовой продукции, так и для запуска нового собственного предприятия исходя из развития нового направления бизнеса.
Расположение: Чел. Обл., г. Копейск, ул. Мира, д.4. Земельный участок: S=86 сот.
Сдается в долгосрочную аренду действующее предприятие ''Литейное производство'' укомплектованное необходимым штатом сотрудников, полным комплектом оборудование по литейному производству отливок из стали, чугуна, нержавеющих и жаропрочных сталей, а так же по производству нестандартного оборудования. Объект подходит как для расширения уже действующего предприятия с растущим объемом продаж готовой продукции, так и для запуска нового собственного предприятия исходя из развития нового направления бизнеса.
Расположение: Чел. Обл., г. Копейск, ул. Мира, д.4. Земельный участок: S=86 сот. Категория земель: земли населенных пунктов Виды разрешенного использования: для эксплуатации зданий Права собственности: ООО (НДС не учитывается)
Строение: Литейный цех Права собственности: ООО (НДС не учитывается) Общая площадь: 1256,5 кв.м. Высота потолка: 5,0 м. (в цехе) Пол: бетон Кол-во ворот: 2 шт. (3*4 м.) Грузоподъемное оборудование: Кран-балка до 5 т. Присутствует техническая возможность установки дополнительной кран-балки в другой пролет. Коммуникации: Отопление газ до 40 куб.\час. Вода\Водоотведение Центральные Эл-во: 1,200 Мтв. Стоимость электроэнергии: 6,5 руб./кВт без НДС.
Основные характеристики: Технологии: XТС (хoлодно-твepдeющиe cмеcи) и ЛГМ (литье по газифицируемым моделям). Два литейных комплекса: 500 и 1000 кг. Максимальный вес отливки: до 700 кг. Оборудование: печи, формовочные линии, смесители, очистные установки и др.
Важно отметить, в радиусе 15-минутной автомобильной доступности плотность населения составляет 41 833 человек.
Транспортная развязка в расположении объекта, обеспечивает всем выдам автомобильного транспорта, удобные подъездные пути во все районы города Копейск, а так же до крупных транспортных развязок по следующим направлениям: +8 км. до центра г. Копейск + 11 км. до объездной г. Челябинска (обход города) прямой въезд/выезд в сторону г.Курган, г.Екатеринбург, г.Троицк, г.Уфа, Республики Казахстан, + 14 км. до г. Челябинска