В избранном
В избранное
Пожаловаться
Напечатать
Следить за ценой

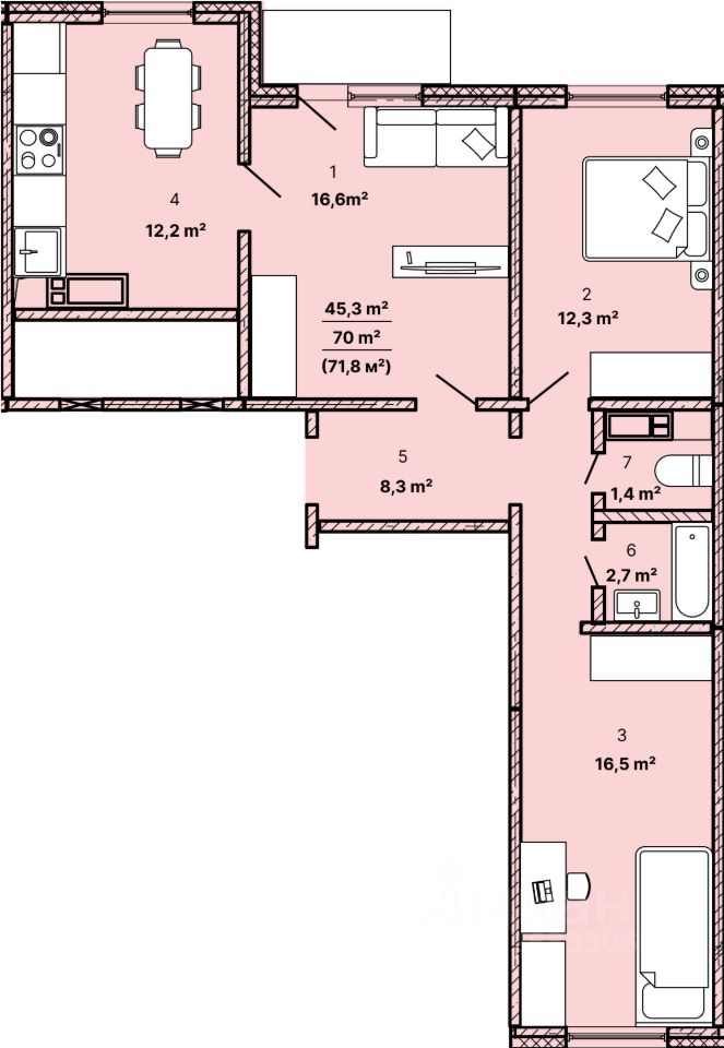
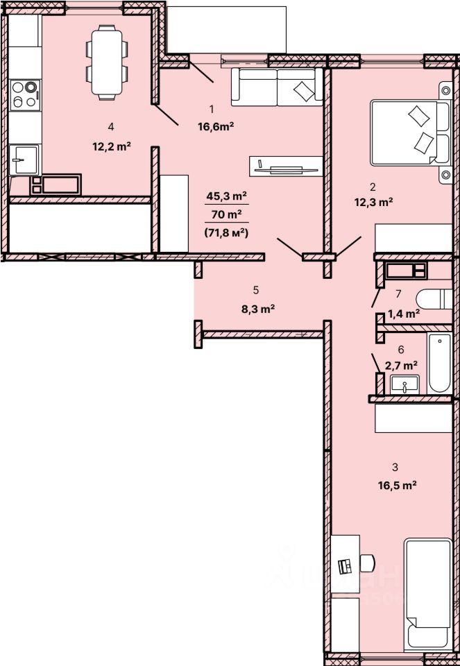
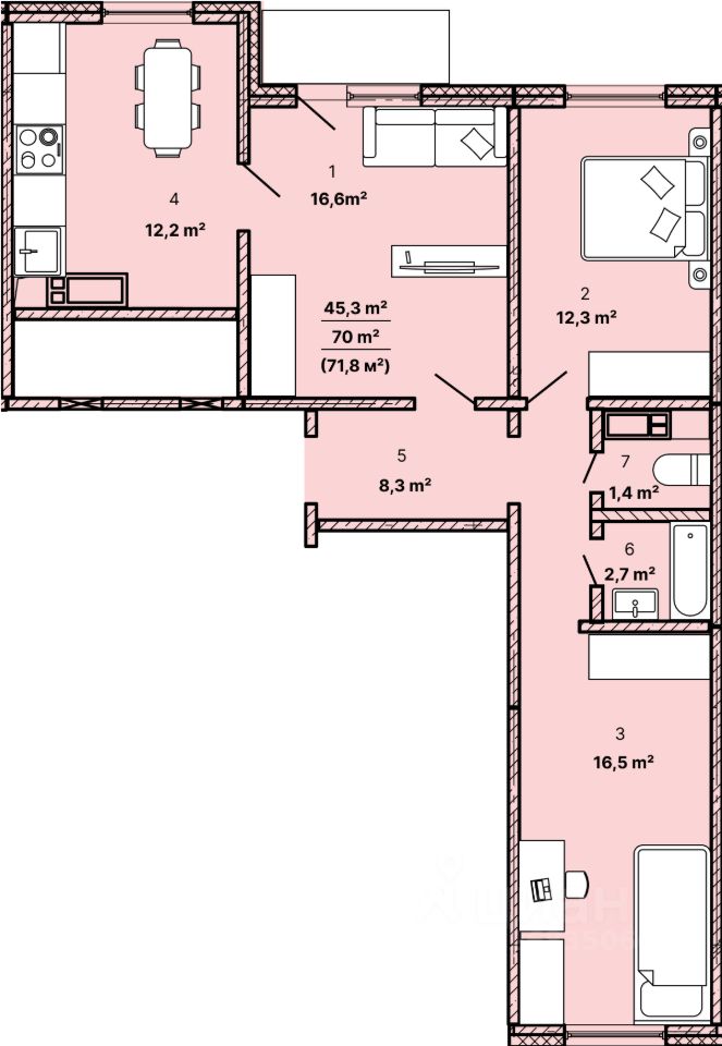
продам 3-к, Артиллерийская, 119/1 стр.10 525 880 ₽

20 янв 2025
Обн. 16 апр
11
146 600 ₽/м²
  • Чистая продажа