Если цена в объявлении изменится, мы сразу сообщим вам об этом на электронную почту.
Нажимая «Подписаться», вы соглашаетесь с правилами.
продам земельный участок, Малиновка8 450 000 ₽
18 янв 2025
Дата публикации объявления
Обн. 14 ноя
Дата обновления объявления
15
Количество просмотров (+ просмотры за сегодня)
938 889 ₽/сотку
Параметры
Площадь участка9 соток
Канализацияесть
Водаесть
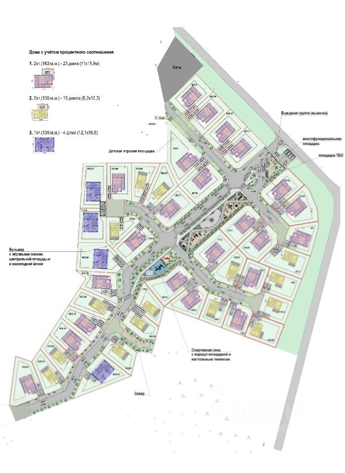
Предлагаем вашему вниманию земельные участки в новом клубном квартале ЛЕСНАЯ МАЛИНОВКА (рассчитан на 46 домовладений), предложение от создателей клубного посёлка ЛЕСНОЙ ОСТРОВ! Расположен в д. Малиновка, 12км от Шершневской плотины по асфальтированной дороге, в непосредственной близости от Лесного Острова. К продаже как пустые земельные участки под самостоятельное строительство (от 5 до 9 соток, стоимостью 950т.р./сот., при необходимости проект дома в подарок), так и участки с нашим подрядами по хорошим продуманным проектам домов!
Предлагаем вашему вниманию земельные участки в новом клубном квартале ЛЕСНАЯ МАЛИНОВКА (рассчитан на 46 домовладений), предложение от создателей клубного посёлка ЛЕСНОЙ ОСТРОВ! Расположен в д. Малиновка, 12км от Шершневской плотины по асфальтированной дороге, в непосредственной близости от Лесного Острова. К продаже как пустые земельные участки под самостоятельное строительство (от 5 до 9 соток, стоимостью 950т.р./сот., при необходимости проект дома в подарок), так и участки с нашим подрядами по хорошим продуманным проектам домов! Концепция и инфраструктура посёлка: - эл-во (проложено подземным способом, подведено к участкам, ТУ на 15кВт), - в поселке магистральный газ (так же подземка, магистраль и точка подключения на границе участка, ТУ на руках), - в посёлке высокоскоростной проводной интернет и TV, - уютная планировка участков и дорог, минимизированы сквозные проезды, с прогулочной зоной и уличным освещением (без наружных проводов), - асфальтированные дороги, хорошая добротная въездная группа (срок реализации 2025-2026гг) - собственная управляющая компания, - территория под видеонаблюдением, - детская игровая площадка, - в шаговой доступности детский сад Малинка-сад и Малиновская основная школа, - различные продуктовые и строительные магазины, аптека как в шаговой доступности, так и по пути следования (продуктовый минимаркет Лесовичок, Магнит, Пятёрочка, Таврия, Рыбторг, Ух-ты Фрукты, ЖизньМарт, Мафт, К&Б, OZON, Wildberries, CDEK и многое другое). Классное место для осуществления своей мечты по постройке собственного дома для постоянного проживания недалеко от города. Участки в собственности (один из кад.номеров для понимания локации: 74:19:1115011:547, категория земель: земли населенных пунктов, разрешенный вид использования: ИЖС). Возможна: продажа по ипотеке, рассрочка, также рассматриваются варианты обмена. ПРЕДУСМОТРЕНЫ СПЕЦ.ПРЕДЛОЖЕНИЯ! За наличный расчет предоставляется скидка, обсуждается индивидуально. Предложение от надёжного партнёра/застройщика (от создателей клубного посёлка ЛЕСНОЙ ОСТРОВ и ЖК Лесной Квартал). За более подробной информацией и записью на просмотр звоните по указанному телефону, будем рады проконсультировать Вас.